关于物业
办公室

宁波来福士办公楼位于大庆南路与大闸南路交汇处,凌踞三江口,紧依天一商圈,接驳地铁2路线出入口,联动多座跨江大桥,构筑领衔宁波的多维交通体系。依傍周边万豪、香格里拉、威斯汀等五星级酒店,老外滩、宁波大剧院等文化中心,另有市政、教育、银行、高档住宅等相互辉映。汇聚各类优势资源,成就全球财富无限商机。

宁波来福士办公楼为一栋19层高、建筑面积约3万平方米的国际办公楼。目前已进驻世界五百强、国内房地产龙头、金融知名企业等。

 

2012年竣工

项目总建筑面积约137,403 平方米

办公楼建筑面积约30,181 平方米

19

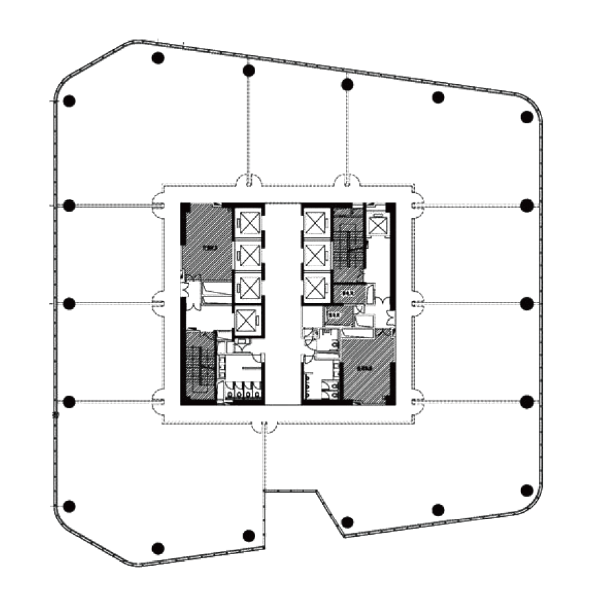
标准楼层面积约2,028 平方米

租赁咨询: 86(574)8738 2666 

地址
大庆南路99号, 宁波, 浙江, 中国
物业状态
营业
关键因素
所有权 / 平台
凯德投资持有和/或管理

Gross Floor Area (sq ft)
1091514.33

Gross Floor Area (sqm)
101405
Click the map to enable interaction
Map of 宁波来福士广场